341 Harvest Point BlvdSpring Hill, TN 37174
Due to the health concerns created by Coronavirus we are offering personal 1-1 online video walkthough tours where possible.




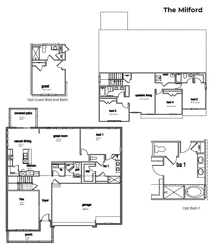
MODEL HOMES ARE NOW OPEN! Please come tour our 4 decorated model homes including some designs that are brand new to the Nashville market. The Milford is a spacious two-story home offering 2,838 sq ft of luxurious living. With 5 bedrooms and 4.5 baths, it’s ideal for larger families or those who love to entertain. The first-floor primary suite serves as a private retreat with a generous walk-in closet and a spa-inspired en-suite bathroom. At the heart of the home is an open-concept kitchen featuring stunning quartz countertops, premium appliances, ample cabinetry, and plenty of counter space. The kitchen flows seamlessly into the expansive great room and dining area, perfect for gatherings and everyday living. Upstairs includes three large bedrooms and two full baths, offering space and flexibility for family or guests. A convenient half bath on the main floor adds function, while the 3-car garage provides extra storage and easy access. Smart home technology lets you control lighting, climate, and security with ease, adding both comfort and efficiency. With its thoughtful layout, stylish design, and modern features, the Milford at Harvest Point in Spring Hill, TN, offers the perfect blend of elegance and practicality. Call now to learn more! The Harvest Point community offers amazing amenities including a community pool, covered cabana, playground, community shops, community garden, dog park, and an extensive walking trail system. Incentives available up to $20,000 with the use of our in house lender. Call today to learn more!
| 7 hours ago | Listing first seen on site | |
| 7 hours ago | Listing updated with changes from the MLS® |
Listings courtesy of Realtracs as distributed by MLS GRID
Based on information submitted to the MLS GRID as of 2025-11-18 02:55 AM UTC. All data is obtained from various sources and may not have been verified by broker or MLS GRID. Supplied Open House Information is subject to change without notice. All information should be independently reviewed and verified for accuracy. Properties may or may not be listed by the office/agent presenting the information.
The Digital Millennium Copyright Act of 1998, 17 U.S.C. § 512 (the “DMCA”) provides recourse for copyright owners who believe that material appearing on the Internet infringes their rights under U.S. copyright law. If you believe in good faith that any content or material made available in connection with our website or services infringes your copyright, you (or your agent) may send us a notice requesting that the content or material be removed, or access to it blocked. Notices must be sent in writing by email to DMCAnotice@MLSGrid.com.
The DMCA requires that your notice of alleged copyright infringement include the following information: (1) description of the copyrighted work that is the subject of claimed infringement; (2) description of the alleged infringing content and information sufficient to permit us to locate the content; (3) contact information for you, including your address, telephone number and email address; (4) a statement by you that you have a good faith belief that the content in the manner complained of is not authorized by the copyright owner, or its agent, or by the operation of any law; (5) a statement by you, signed under penalty of perjury, that the information in the notification is accurate and that you have the authority to enforce the copyrights that are claimed to be infringed; and (6) a physical or electronic signature of the copyright owner or a person authorized to act on the copyright owner’s behalf. Failure to include all of the above information may result in the delay of the processing of your complaint.
Did you know? You can invite friends and family to your search. They can join your search, rate and discuss listings with you.